328BLU
Erweiterung Haus Blumer, Muttenz
Direktauftrag
Auftraggeberschaft: Privat
Planung und Ausführung 2023-25
-
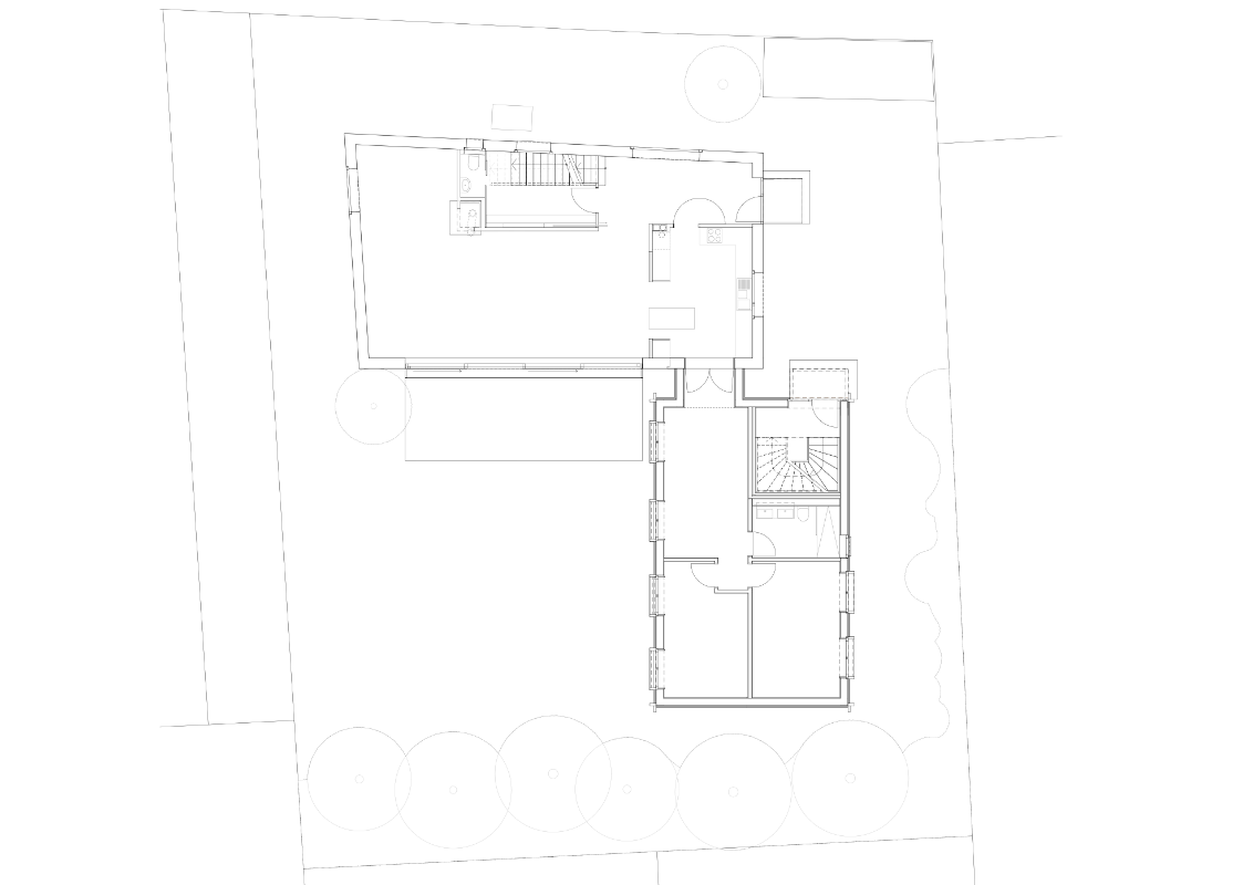
Die kleine Schwester:
Erweiterung Haus Blumer in Muttenz
2001 durften wir in Muttenz an der Baslerstrasse für eine junge Familie eines unserer ersten Häuser bauen. Kräftig, verputzt als homogenes Einsteinmauerwerk mit markantem Satteldach ohne sichtbare Rinne zeigt es sich heute noch frisch, das Einsteinmauerwerk ist auch im Sockelbereich in einwandfreiem Zustand und das Haus stellt sich mit grosser entspannter Selbstverständlichkeit in die Reihe der historischen Häuser im Ortskern.
Mittlerweile in der ‘empty nest’-Phase angekommen und mit Blick auf eine altersgerechte Wohnsituation gehen die Überlegungen der Auftraggeberschaft in Richtung einer horizontalen Erweiterung des Hauses, was ihnen die Möglichkeit gibt, auf einer Ebene zu wohnen und das darüberliegende Geschoss zu vermieten. Verdichtung und Barrierefreiheit in einem Zug.
Die ist mit einem hölzernen Anbau – der kleinen Schwester – geschehen. Auch dieses Haus ist entspannt gesetzt, schafft einen schönen neuen Garten, auch hier wird die Wasserführung des (Solar)Daches ein Thema. Das Thema der historischen gemauerten und strassenbegleitenden Häuser mit den gartenseitigen Holzscheunen wird aufgenommen und in einem neuen Zusammenhang diskutiert. Eine differenziert entwickelte Holzfassade reflektiert den kleinteiligen Ort.Hier die ersten Bilder des aufgerichteten Holzbaus.