368BGW
Wohnhaus Güterbahnhofareal Wolf, Basel
Einstufiger Projektwettbewerb im selektiven Verfahren
Auftraggeberschaft: SBB AG, Olten
2025
-
Let’s twist again
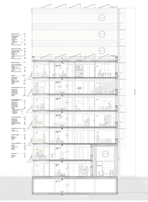
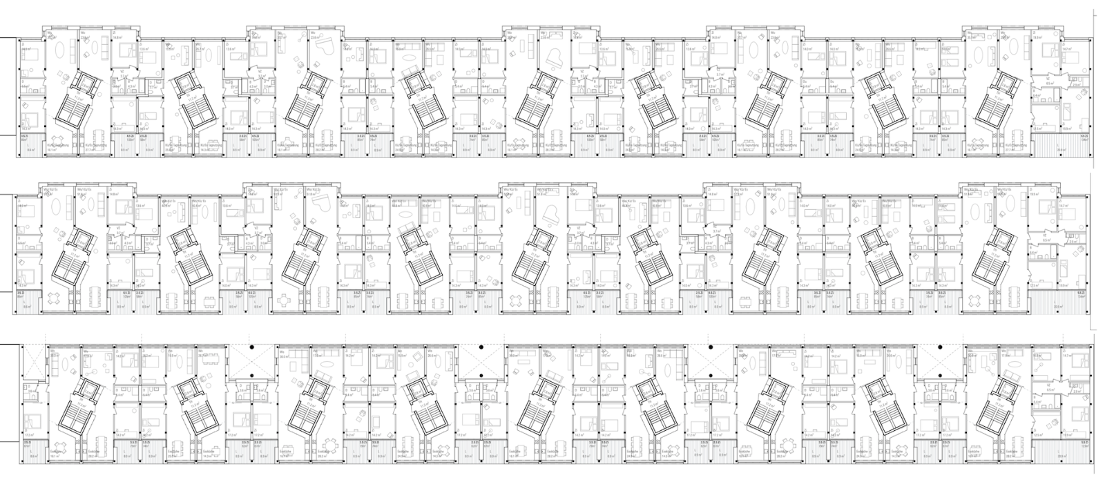
Der präzise Städtebau von Christ & Gantenbein legt den Schwerpunkt auf einen wunderbaren Hofraum, gefasst durch Bestandesbauten, gefasst auch durch Neubauten, die sich mit klaren Regeln am Ort etablieren. Der Hofraum zeigt sich lebensnah, aneigenbar und vermittelt im Spannungsfeld zwischen Privatem und Öffentlichem. Eine bodengebundene Vegetation wirkt als natürliche Klimakammer und schafft eine entspannte Basis für einen lebensfrohen Ort.
Das Projekt twist again zeigt sich leicht und präzis. Leicht in seiner Erscheinung in seinem hölzernen Kleid zum Hof, leicht in seiner Struktur mit den tanzenden Kernen und den feinen Stützen, leicht auch zur Bahnseite mit unterschiedlich geneigten PV-Paneelen, präzis in seiner Typologie und den durchgehenden Räumen loftartigen Wohnräumen. Das Konzept folgt mit der konsequenten CO2 reduzierten Konstruktion mit Holzunterzügen und dünnen Betondecken, Holzrahmenfassade und einem stringenten Design for Dissasembly (DFD) einer umfassend verstandenen Nachhaltigkeit. Mit einer Low-Tech-Strategie ohne Lüftung, ohne eingelegte Leitungen, wird eine klare Systemtrennung angeboten, welche im Weiteren neben der Ressourcenschonung auch die Investitionskosten optimiert. Ein Projekt, das sich umfassend den Herausforderungen für zukunftsfähiges Bauen stellt.
Architektur: Luca Selva Architekt:innen
Visualisierungen: Filippo Bolognese Images | www.filippobolognese.ch