348NAU
Handelshof Nauenstrasse, Basel
Gesamtleistungsstudie auf Einladung 2022-23
Auftraggeber:in: IMMOFONDS Immobilien AG
-
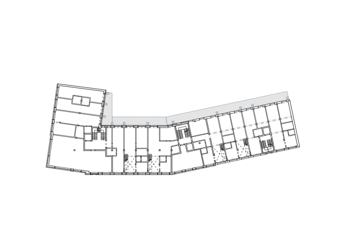
Konsequent Weiterbauen: Aufstockung statt Abbruch
Der Handelshof an der Nauenstrasse ist ein prägnanter Gewerbebau aus den 1920-er Jahren, der im Zuge der Aufzonung an der Nauenstrasse mit seinem Verdichtungspotenzial das Interesse der Investoren geweckt hat. Im Studienauftrag wurde neu eine maximale Wohnnutzung (mit Ausnahme Erdgeschoss) bestellt, für die oberen – insgesamt 4 zusätzlichen Geschosse – ist Wohnen vorgesehen. In unserem Vorschlag wird auf Abbruch verzichtet, das Konzept sieht eine Aufstockung vor, die bestehenden Treppenhäuser werden beibehalten und erschliessen die Maisonnette-Wohnungen. Die Konstruktion der teilweise 4-geschossigen Aufstockung ist ein Holzbau, die Verkleidung der Fassade erfolgt mit PV-Paneelen.