238WOL
Alters- und Pflegeheim Wollmatt, Dornach
Studienauftrag
Auftraggeber: Genossenschaft Migros Basel
Wettbewerb: 2018
-
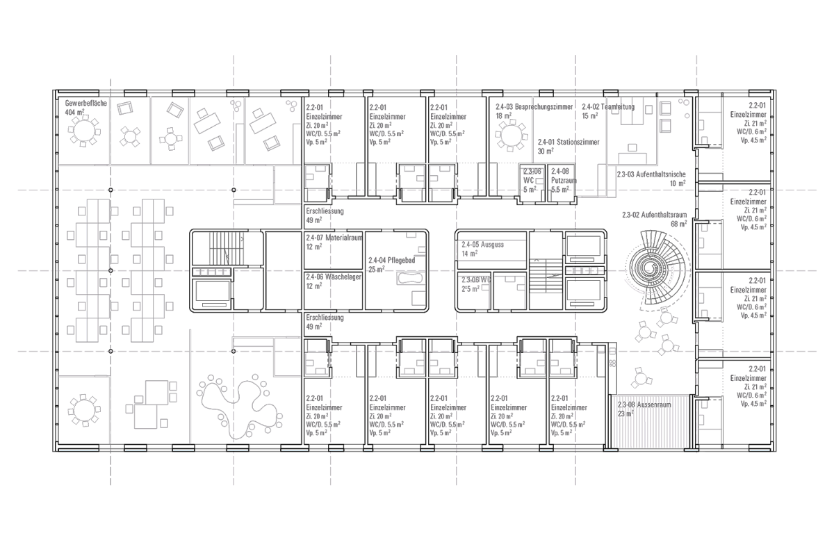
Der städtebauliche Ansatz des Projektes interpretiert zum einen die vorgefundene Topographie und schafft andererseits einen Merkpunkt entlang der Bahnlinie im Birstal. Die spezifische Lage gegenüber der Klosteranlage wird damit thematisiert und räumlich akzentuiert. Diese Idee der Verknüpfung von Landschaft und Typologie zeigt sich explizit im Längsschnitt des Hauses, der volumetrisch differenziert den Ort bespielt. Die Fassaden sind auf der Basis der architektonisch-städtebaulichen Idee entwickelt und thematisieren mit ihren eindeutig unterschiedlichen Materialisierungen die Spezifika des Ortes. Eine 'weiche' feingliederige Fassade in Holz als Gegenüber zum Kloster und ein Grid in innengedämmtem Sichtbeton auf die Bewegungsseiten der Züge verankern das Projekt präzise am Ort. Eine klare Adressierung zeichnet das Projekt aus, so werden die Personenerschliessungen durch die 'weichen' Ost- oder Westfassaden geführt, während der Verkehr von Norden und Süden durch die 'harte' Fassadenschicht erschlossen wird.